Portable Personal Bioprotection Device
Preventing Future Pandemics
For over 4 years, we have been working on finding an answer to COVID-19 and similar air borne infections.
Unlike the other pathogens, there are many kinds of viruses that invade our body to become permanent residents creating acute and long term harm.
We have to confront the viruses and destroy them, rather than living with them wearing protective measures.
We should stop the viruses from entering the body and thus fight the viruses outside our body.
We designed and developed the Portable Personal Bio-protection Devices (PPBD) with all these challenges in mind.
We appreciate the community support and encouragement.
For additional information contact Rosalie M. Fernandez @ 956-594-4194
PROPOSED ADDITIONAL MEASURES TO CONTROL COVID-19
PPBD
Preventing Future Pandemics
We have developed a breakthrough technology that could help prevent future pandemics. The most effective way to protect yourself from viruses is to stop them from entering your body in the first place. Our unit has been tested and proven to eliminate COVID-19 virions upon entry.
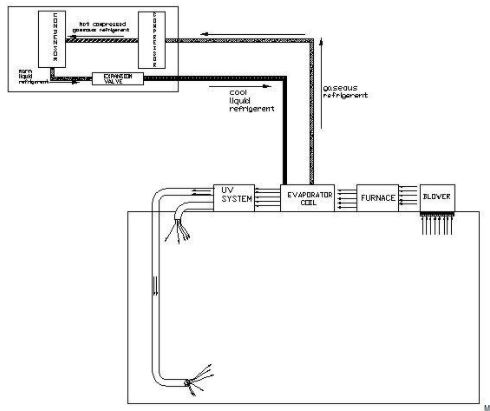
With very few exceptions, several homes and most business offices have air conditioner inlet and outlet both on the ceiling. This will make the air current stronger near the ceiling and weaker at the ground level. In cold climate, when the inlet brings down hot air, this air has no reason to go to the ground level and bounce back to the outlet. Since the hot air stays on the upper layers of the room it crawls along the ceiling and gets out through the outlet
The air is cooler and slower as the distance from the ceiling to the floor increases. In the area of the room, where people move around or rest, especially in wheelchairs and hospital beds, the air is cool, stagnant, and dry. This is the best condition for the COVID-19 droplets to settle down, evaporate and fill the room with the virion mist. Another important fact is that in efforts to heat the lower portion of the room, the consumers use more energy and pay more for their air conditioning.
HVAC UNIT
WHO has advised that we do not use ultraviolet devices because of the potential harm to the skin, eye, etc. and even causing cancer. This is on the understanding that the UV light is applied directly on the individuals. UV devices are already in use to sterilize tabletops and surgical instruments, water purification, etc. where the individuals do not have to be near the devices. The disadvantage of these devices is that light travels only in straight line and cannot go around furniture or equipment. One of the methods we are proposing is to hire the readily available air to do the job. Air can go around and under the furniture and equipment. By weaponizing the air conditioners to purify the air, the air circulation can be converted into a self-cleaning system. Combining this with the modification of the air conditioners that was already described, the air purification can be accomplished (Fig. 13). These UV light units can be incorporated into the main air conditioners or the individual rooms, to accomplish “Total Air Purification”.
Published Articles
Abstract
The nature in which the coronavirus disease 2019 (COVID-19) pandemic started and spread all over the world has surprised and shocked experts and the general population alike. This has brought out a worldwide desire and serious efforts to prevent, or at least reduce, the severity of another airborne viral infection and protect individuals gathering for various reasons. Toward this main purpose, a novel method to disinfect the air, using graded, predictable, safe, and reliable dosage of ultraviolet C (UVC), with specially designed devices, is described here. Individuals exclusively breathing this disinfected air can prevent infection, thus destroying the airborne virus or any other pathogens outside the human body to prevent acute and chronic damage to the organs and provide a sense of security to congregate, use public transport, and be protected in acute and long-term healthcare facilities.
The study involved designing and testing a unit with one UVC chamber and another unit with six UVC chambers both enclosed in UVC-opaque housings that could be used to destroy airborne pathogens. Wild-type severe acute respiratory syndrome coronavirus 2 (SARS-CoV-2) was used as a representative pathogen. The virus was fed into these units and in both units, the virus was destroyed to undetectable levels. Such disinfected air can be made available for individuals to breathe at an individual and a community level.
The two units that were studied were able to destroy the SARS-CoV-2 virus completely in UVC-opaque housings, making them safe for human use. By employing the air to bring the virus to the UVC, the problem of the virus getting protected behind structures was avoided. The individuals get to breathe totally disinfected air through a mask or a ventilator. To protect individuals who are unable or unwilling to use these units meant for individual use, the same principle can be expanded for use with air conditioners to provide community protection. It is envisaged that this method can prevent airborne infections from turning into pandemics and is a clear example of advocating prevention, rather than treatment.
These units are expandable and the UVC dosage to the pathogen can be adjusted and predictable, thereby making it a standard technique to study the dosage needed to inactivate different pathogens.

